St-Leonard | non réalisé

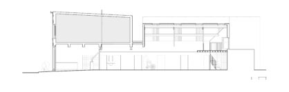
Le projet consiste dans l’installation d’un atelier de fabrication et de réparation de vélos dans un ancien atelier garage dans le quartier Saint-Léonard à Liège.

Le lieux envisagé nécessite un remplacement de la toiture industrielle à l’occasion de laquelle des fermes anciennes et élégantes seront préservées remises en valeur.

L’organisation du lieux comprend une zone d’accueil et de bureau dans la partie en connexion avec la rue et une zone réservée à la production dans la partie arrière sous la toiture principale.

La zone de production comprend : un atelier de soudure, une cabine sablage et une cabine de peinture, une zone de montage et une mezzanine destinée au bike fitting et à la prise de mesure.

… Le projet n’a malheureusement pas pu voir le jour pour des raisons budgétaires.
coupe longitudinale
plan du niveau 0